Acheter Maison6 pièces90 m²à Rennes (35000)

494 000 € Réf. 2191JVM
6
pièce(s)
5
chambre(s)
90 m²
de surface

Emplacement idéal et préservé dans le quartier du thabor, venez visiter cette maison à rénover située au calme dans une cour intérieure.

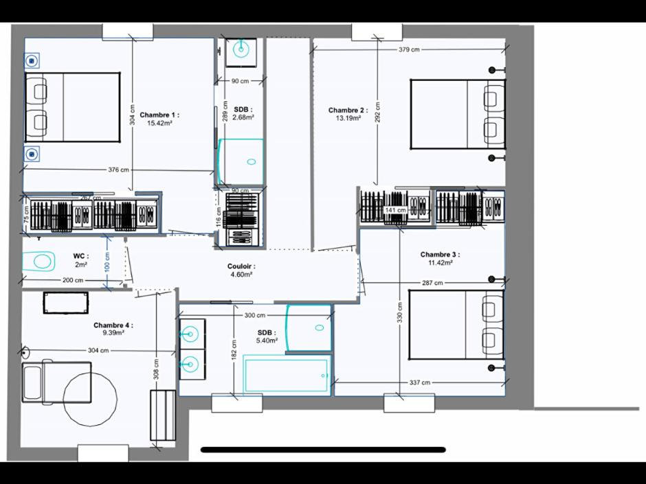
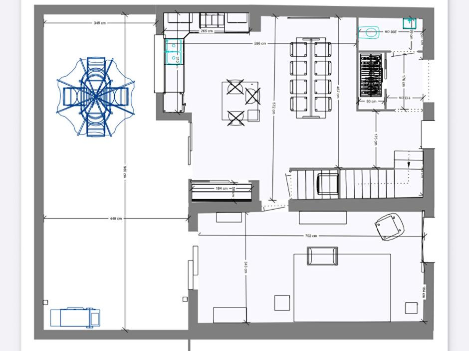
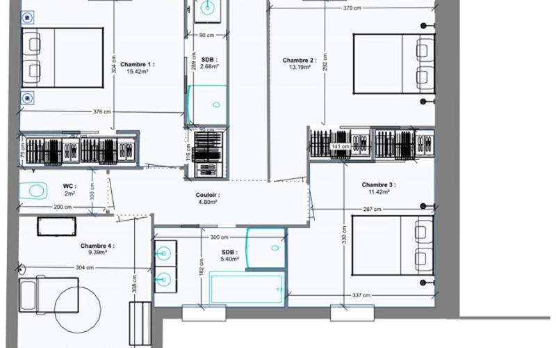
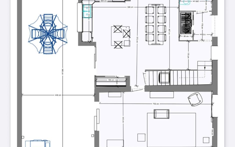
Très beau projet avec potentiel d'environ 130 m² habitables répartis sur deux niveaux après rénovation et surélévation à charge de l'acheteur. Actuellement, la distribution permet d'envisager un vaste séjour-salon, une cuisine, 4 chambres, salle de bains, salle d'eau, ainsi qu'une cour intérieure.

Un garage fermé et un stationnement privatif complètent ce bien rare dans ce quartier prisé du centre-ville.

Une opportunité unique pour créer une maison familiale sur mesure, au coeur d'un environnement recherché. (4.00 % honoraires TTC à la charge de l'acquéreur.)

Informations complémentaires

  • Nombre de pièce(s) : 6
  • Nombre de chambre(s) : 5
  • Surface habitable : 90 m²
  • Nombre de niveaux : 1
  • Etage : RDC
  • Balcon/Terrasse : Non
  • Ascenseur : Non
  • Référence : 2191JVM
  • Prix : 494 000 €
  • Charge des honoraires : Acquéreur
  • Honoraires : 19 000 €
  • Barême honoraires :
    Consulter

Dépenses énergétiques

A B C D E F G logement très performant logement extrêmement consommateur d'énergie Non requis
A B C D E F G émissions de CO₂ très importantes peu d'émissions de CO₂ Non requis
Montant de votre prêt
Durée de votre prêt
Taux d'intérêt avant négociation
Emprunt de
Durée de l'emprunt
Mensualités de

 Recharger Contactez-nous

Besoin d'un renseignement ?

Rennes Immobilier

88, Rue Saint-Hélier - 35000 RENNES

Autres biens
pouvant vous intéresser
Le Groupe Gasnier